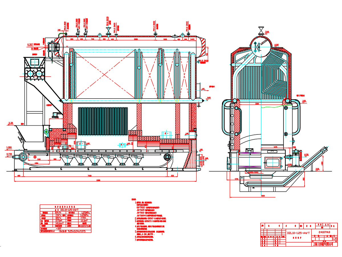
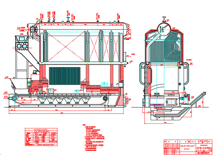
Biomass boiler
Steam oven: 10-130t/h
Water heater: 7-116MW
Boiler parameters:
Pressure: 1.0-9.8MPa
Temperature: 184-540 ° C
Pressure: 1.0-1.6MPa
Temperature: 95-150 ° C
Boiler fuel: waste wood, straw, bagasse, palm shell, biomass pellets, etc.
Combustion method: circulating fluidized bed, water-cooled vibrating grate, reciprocating grate, chain grate, (water-cooled) fixed grate, lower servo, etc.

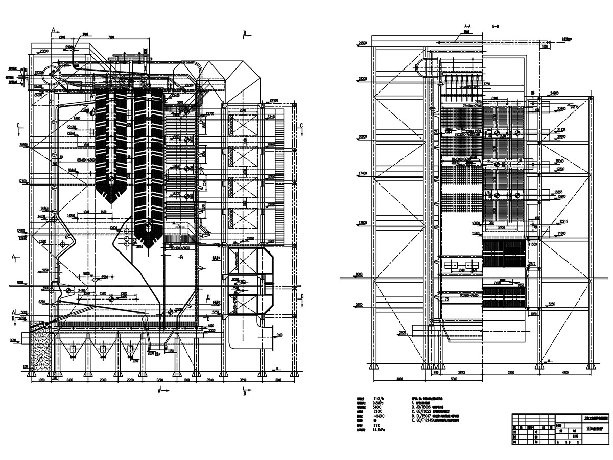
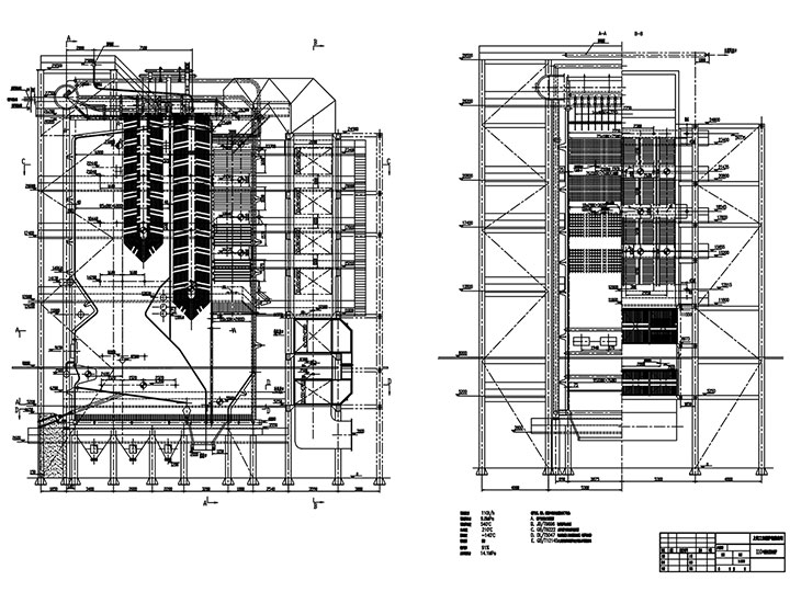
110 tons of sugar cane baggage water-cooled vibration grate furnace

24107M.0dwg
Biomass boiler:
The company adopts appropriate fuel collection, transportation and pre-furnace fuel delivery methods for fuel characteristics, and adopts a boiler structure to configure a suitable combustion system and air distribution method. The problem of coking in the furnace, insufficient combustion and easy corrosion of the heated surface of the tail are solved.
Boiler capacity:
Steam oven: 10-130t/h
Water heater: 7-116MW
Boiler parameters:
Pressure: 1.0-9.8MPa
Temperature: 184-540 ° C
Pressure: 1.0-1.6MPa
Temperature: 95-150 ° C
Boiler fuel: waste wood, straw, bagasse, palm shell, biomass pellets, etc.
Combustion method: circulating fluidized bed, water-cooled vibrating grate, reciprocating grate, chain grate, (water-cooled) fixed grate, lower servo, etc.
Boiler features:
a. Adopting reasonable feeding system, the feeding uniformity is good, the load tracking property is good, and the automation level is high.
b. Use reasonable combustion equipment to design layer combustion, suspension combustion or layer combustion and suspension combustion to ensure that the fuel is fully combusted and burned.
c. Reasonably arrange the heated surface and organize into a sufficient combustion aerodynamic field to solve the problem of insufficient combustion and easy corrosion of the heated surface of the tail.
d. Select a reasonable furnace outlet smoke temperature and a convective heating surface flue gas flow rate to reduce boiler ash or wear.