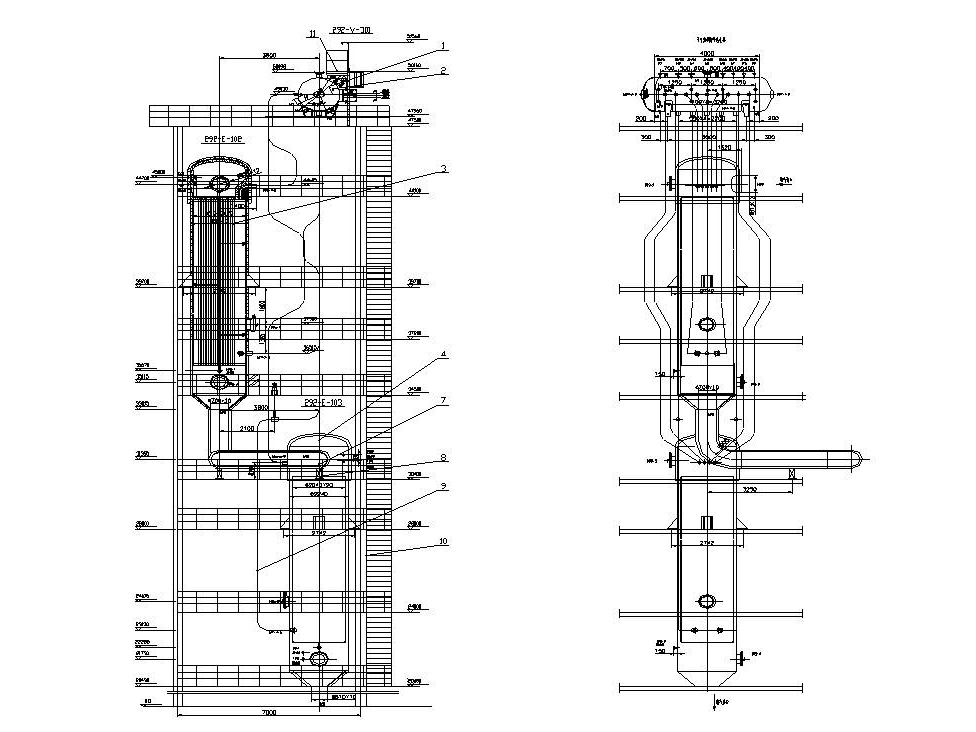
Petrochemical waste heat boiler
Boiler capacity: 1-220t/h
Boiler parameters:
Pressure: 0.5-9.8MPa
Temperature: 150-540 ° C
Boiler form: horizontal, vertical

Waste heat boiler series:
Waste heat boilers are used to rationally utilize existing resources, achieve energy conservation and emission reduction, reduce operating costs, save resources, improve the environment, improve economic efficiency, and achieve optimal resource allocation. A boiler that utilizes sensible heat in exhaust gases, waste or waste liquids in various industrial processes or (and) heat generated by combustion of combustible materials.
The company's main products:
Boiler type: low temperature (cement kiln, glass kiln, desulfurization, etc.) waste heat boiler, steel coking (dry coke, sintering and cold, blast furnace gas, coke oven gas, etc.) waste heat boiler, non-ferrous metallurgy (silicon iron, ferromanganese, nickel Iron, etc.) Waste heat boiler, petrochemical (catalytic cracking, reaction oil and gas, sulfur recovery, organic industrial waste gas, system (plus) hydrogen, calcined coke, etc.), dry quenching and other waste heat boilers.
Boiler capacity: 1-220t/h
Boiler parameters:
Pressure: 0.5-9.8MPa
Temperature: 150-540 ° C
Boiler form: horizontal, vertical
Boiler features:
Through cooperation with a number of design institutes (Shanghai 711, Luoyang Institute, 703, Huatai Coking Institute, etc.), we have successfully developed various types of waste heat boilers in the cement, steel, metallurgy, petrochemical, and CDQ industries. The relatively high technical content has achieved good social benefits after being put on the market, and has been widely praised and recognized by the market.